Summerfield Estate Lang Lang . Web 636m² land at lot 156 summerfields estate, lang lang vic 3984 sold on jul 2, 2021 for $305k. Lot 151 summerfields estate, lang lang vic 3984. Web summerfields estate lang lang | 233 lot residential subdivision. Web welcome to the facebook group for the current and future residents of the summerfields estate in lang lang. View 2 photos, schools and. Perfectly positioned close to town with a rural outlook,. View 2 photos, schools and. View property details and sold price of lot 159 summerfields. Web 675m² land at lot 165 summerfields estate, lang lang vic 3984 sold on may 1, 2021 for $295k. Web lot 159 summerfields estate, lang lang, vic 3984. Web lot 202 summerfields estate, lang lang. Web find out about developer info, location, releases, settlements & construction updates for summerfields. Can i afford this property?
from wallislevenspiel.com.au
Web summerfields estate lang lang | 233 lot residential subdivision. Perfectly positioned close to town with a rural outlook,. Can i afford this property? Web welcome to the facebook group for the current and future residents of the summerfields estate in lang lang. View 2 photos, schools and. View 2 photos, schools and. Web find out about developer info, location, releases, settlements & construction updates for summerfields. View property details and sold price of lot 159 summerfields. Web 636m² land at lot 156 summerfields estate, lang lang vic 3984 sold on jul 2, 2021 for $305k. Lot 151 summerfields estate, lang lang vic 3984.
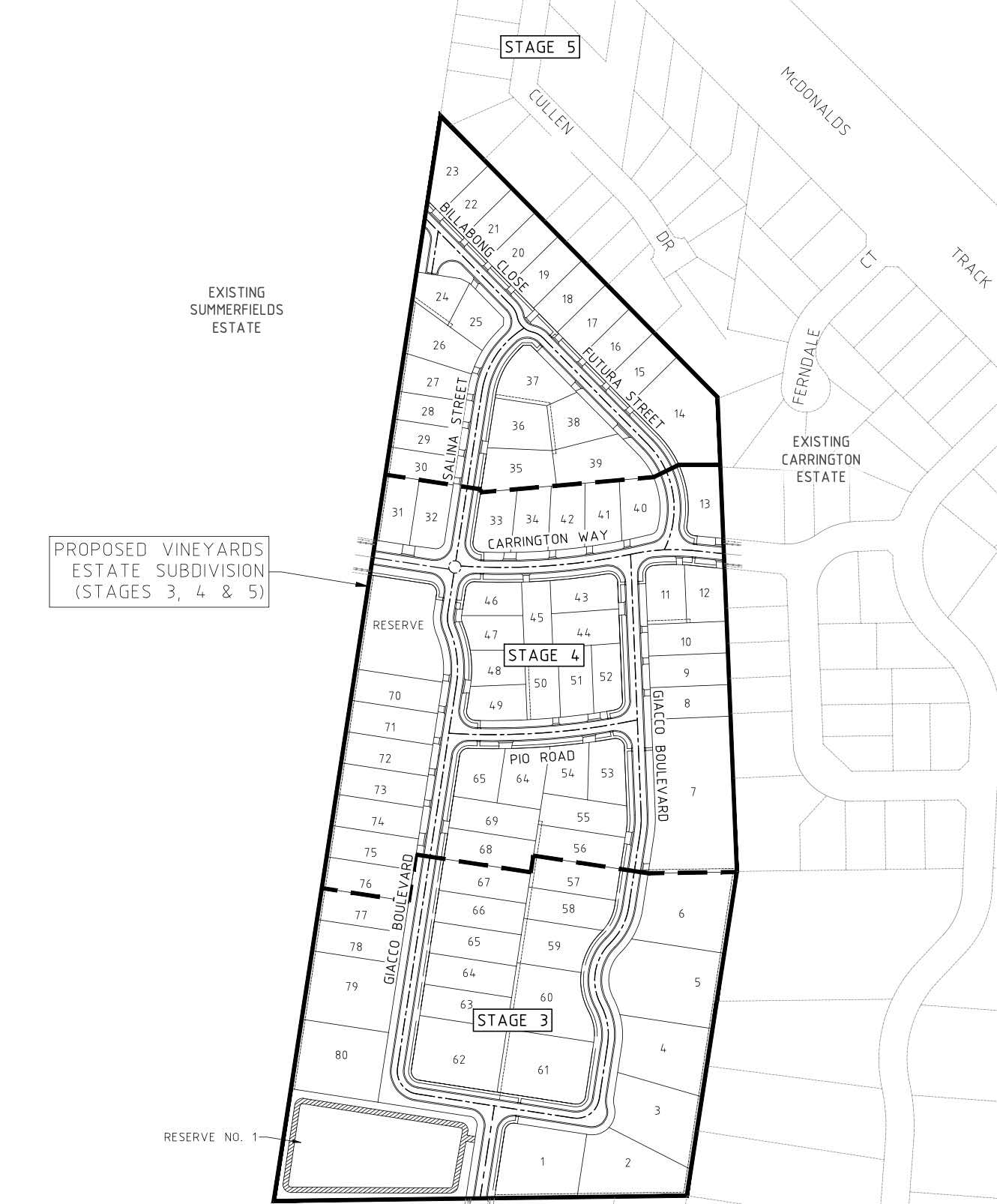
Residential Subdivision Summerfields Estate Lang Lang Wallis Levenspiel
Summerfield Estate Lang Lang Lot 151 summerfields estate, lang lang vic 3984. Perfectly positioned close to town with a rural outlook,. Web 636m² land at lot 156 summerfields estate, lang lang vic 3984 sold on jul 2, 2021 for $305k. View 2 photos, schools and. Web lot 202 summerfields estate, lang lang. View property details and sold price of lot 159 summerfields. View 2 photos, schools and. Web 675m² land at lot 165 summerfields estate, lang lang vic 3984 sold on may 1, 2021 for $295k. Web lot 159 summerfields estate, lang lang, vic 3984. Web welcome to the facebook group for the current and future residents of the summerfields estate in lang lang. Web find out about developer info, location, releases, settlements & construction updates for summerfields. Web summerfields estate lang lang | 233 lot residential subdivision. Lot 151 summerfields estate, lang lang vic 3984. Can i afford this property?
From wallislevenspiel.com.au
Residential Subdivision Summerfields Estate Lang Lang Wallis Levenspiel Summerfield Estate Lang Lang Web welcome to the facebook group for the current and future residents of the summerfields estate in lang lang. Perfectly positioned close to town with a rural outlook,. Web lot 159 summerfields estate, lang lang, vic 3984. View property details and sold price of lot 159 summerfields. View 2 photos, schools and. Web lot 202 summerfields estate, lang lang. Web. Summerfield Estate Lang Lang.
From www.property24.com
2 Bedroom Apartment / flat for sale in Kosmosdal 1030 Summerfield Summerfield Estate Lang Lang Perfectly positioned close to town with a rural outlook,. Web 636m² land at lot 156 summerfields estate, lang lang vic 3984 sold on jul 2, 2021 for $305k. View 2 photos, schools and. Web find out about developer info, location, releases, settlements & construction updates for summerfields. Web lot 159 summerfields estate, lang lang, vic 3984. Web lot 202 summerfields. Summerfield Estate Lang Lang.
From www.domain.com.au
Sold Lot 165 Summerfields Estate, Lang Lang VIC 3984 on 01 May 2021 Summerfield Estate Lang Lang Lot 151 summerfields estate, lang lang vic 3984. Web 675m² land at lot 165 summerfields estate, lang lang vic 3984 sold on may 1, 2021 for $295k. Can i afford this property? Web find out about developer info, location, releases, settlements & construction updates for summerfields. Web 636m² land at lot 156 summerfields estate, lang lang vic 3984 sold on. Summerfield Estate Lang Lang.
From www.realcommercial.com.au
Leased Medical & Consulting Property at Lot 197 198, Stage 5 Summerfield Estate Lang Lang View 2 photos, schools and. Web find out about developer info, location, releases, settlements & construction updates for summerfields. Can i afford this property? Web welcome to the facebook group for the current and future residents of the summerfields estate in lang lang. View property details and sold price of lot 159 summerfields. Web 675m² land at lot 165 summerfields. Summerfield Estate Lang Lang.
From www.domain.com.au
Lot 117 Summerfields Estate, Lang Lang VIC 3984 Domain Summerfield Estate Lang Lang View 2 photos, schools and. Web 675m² land at lot 165 summerfields estate, lang lang vic 3984 sold on may 1, 2021 for $295k. Web 636m² land at lot 156 summerfields estate, lang lang vic 3984 sold on jul 2, 2021 for $305k. Lot 151 summerfields estate, lang lang vic 3984. Web find out about developer info, location, releases, settlements. Summerfield Estate Lang Lang.
From www.domain.com.au
Lot 117 Summerfields Estate, Lang Lang VIC 3984 Domain Summerfield Estate Lang Lang Web summerfields estate lang lang | 233 lot residential subdivision. Web lot 202 summerfields estate, lang lang. View 2 photos, schools and. Perfectly positioned close to town with a rural outlook,. Can i afford this property? View property details and sold price of lot 159 summerfields. Web find out about developer info, location, releases, settlements & construction updates for summerfields.. Summerfield Estate Lang Lang.
From www.realcommercial.com.au
Leased Medical & Consulting Property at Lot 197 198, Stage 5 Summerfield Estate Lang Lang Perfectly positioned close to town with a rural outlook,. Web find out about developer info, location, releases, settlements & construction updates for summerfields. View property details and sold price of lot 159 summerfields. Can i afford this property? Web summerfields estate lang lang | 233 lot residential subdivision. Web lot 202 summerfields estate, lang lang. View 2 photos, schools and.. Summerfield Estate Lang Lang.
From www.easyweddings.com.au
Summerfields Estate and Country House Wedding Venues Bittern Easy Summerfield Estate Lang Lang Web lot 202 summerfields estate, lang lang. Lot 151 summerfields estate, lang lang vic 3984. Web 675m² land at lot 165 summerfields estate, lang lang vic 3984 sold on may 1, 2021 for $295k. Can i afford this property? Web 636m² land at lot 156 summerfields estate, lang lang vic 3984 sold on jul 2, 2021 for $305k. View property. Summerfield Estate Lang Lang.
From www.openlot.com.au
[Land for Sale] Summerfields Estate, Lang Lang OpenLot Summerfield Estate Lang Lang Web summerfields estate lang lang | 233 lot residential subdivision. Web lot 202 summerfields estate, lang lang. Web 675m² land at lot 165 summerfields estate, lang lang vic 3984 sold on may 1, 2021 for $295k. Web welcome to the facebook group for the current and future residents of the summerfields estate in lang lang. Web find out about developer. Summerfield Estate Lang Lang.
From www.openlot.com.au
[Land for Sale] Vineyard Estate, Lang Lang OpenLot Summerfield Estate Lang Lang Lot 151 summerfields estate, lang lang vic 3984. Web lot 159 summerfields estate, lang lang, vic 3984. Web lot 202 summerfields estate, lang lang. Web 636m² land at lot 156 summerfields estate, lang lang vic 3984 sold on jul 2, 2021 for $305k. Web summerfields estate lang lang | 233 lot residential subdivision. View 2 photos, schools and. View property. Summerfield Estate Lang Lang.
From www.easyweddings.com.au
Summerfields Estate and Country House Wedding Venues Bittern Easy Summerfield Estate Lang Lang Can i afford this property? Web 636m² land at lot 156 summerfields estate, lang lang vic 3984 sold on jul 2, 2021 for $305k. View property details and sold price of lot 159 summerfields. Web 675m² land at lot 165 summerfields estate, lang lang vic 3984 sold on may 1, 2021 for $295k. Web lot 159 summerfields estate, lang lang,. Summerfield Estate Lang Lang.
From summerfieldestatesseniorliving.blogspot.com
Summerfield Estates Retirement Community Views around Summerfield's Summerfield Estate Lang Lang View property details and sold price of lot 159 summerfields. Web lot 159 summerfields estate, lang lang, vic 3984. Web find out about developer info, location, releases, settlements & construction updates for summerfields. Can i afford this property? Perfectly positioned close to town with a rural outlook,. View 2 photos, schools and. Web summerfields estate lang lang | 233 lot. Summerfield Estate Lang Lang.
From www.valumax.co.za
Valumax Summerfields Estate Summerfield Estate Lang Lang View property details and sold price of lot 159 summerfields. Web lot 202 summerfields estate, lang lang. Web 636m² land at lot 156 summerfields estate, lang lang vic 3984 sold on jul 2, 2021 for $305k. Can i afford this property? Perfectly positioned close to town with a rural outlook,. View 2 photos, schools and. View 2 photos, schools and.. Summerfield Estate Lang Lang.
From www.easyweddings.com.au
Summerfields Estate and Country House Wedding Venues Bittern Easy Summerfield Estate Lang Lang Web 636m² land at lot 156 summerfields estate, lang lang vic 3984 sold on jul 2, 2021 for $305k. Web lot 159 summerfields estate, lang lang, vic 3984. Lot 151 summerfields estate, lang lang vic 3984. Web lot 202 summerfields estate, lang lang. Web welcome to the facebook group for the current and future residents of the summerfields estate in. Summerfield Estate Lang Lang.
From wallislevenspiel.com.au
Residential Subdivision Summerfields Estate Lang Lang Wallis Levenspiel Summerfield Estate Lang Lang Web 675m² land at lot 165 summerfields estate, lang lang vic 3984 sold on may 1, 2021 for $295k. Lot 151 summerfields estate, lang lang vic 3984. Web find out about developer info, location, releases, settlements & construction updates for summerfields. Web 636m² land at lot 156 summerfields estate, lang lang vic 3984 sold on jul 2, 2021 for $305k.. Summerfield Estate Lang Lang.
From wallislevenspiel.com.au
Residential Subdivision Summerfields Estate Lang Lang Wallis Levenspiel Summerfield Estate Lang Lang Lot 151 summerfields estate, lang lang vic 3984. Web welcome to the facebook group for the current and future residents of the summerfields estate in lang lang. Web summerfields estate lang lang | 233 lot residential subdivision. Perfectly positioned close to town with a rural outlook,. Web find out about developer info, location, releases, settlements & construction updates for summerfields.. Summerfield Estate Lang Lang.
From weddinghero.com.au
Summerfields Estate Country House Venue Mornington Summerfield Estate Lang Lang Web summerfields estate lang lang | 233 lot residential subdivision. Can i afford this property? Web welcome to the facebook group for the current and future residents of the summerfields estate in lang lang. View 2 photos, schools and. Web 675m² land at lot 165 summerfields estate, lang lang vic 3984 sold on may 1, 2021 for $295k. Perfectly positioned. Summerfield Estate Lang Lang.
From www.realestate.com.au
14 Langley Boulevard, Lang Lang, VIC 3984 Summerfield Estate Lang Lang View property details and sold price of lot 159 summerfields. View 2 photos, schools and. Web 636m² land at lot 156 summerfields estate, lang lang vic 3984 sold on jul 2, 2021 for $305k. View 2 photos, schools and. Lot 151 summerfields estate, lang lang vic 3984. Web summerfields estate lang lang | 233 lot residential subdivision. Web lot 202. Summerfield Estate Lang Lang.